技術文章
QBT1876標準風筒/吹風機53點溫度測量裝置
風筒,也被稱為吹風機或電吹風,在我們的日常生活中已經成為必不可少的工具。無論是用于造型、吹干濕發還是為了節省時間,這些設備的效率和安全性都是至關重要的。而在風筒安全性方面,溫度控制和測量是一個關鍵環節。
溫度測量在防止過高溫度引起發絲損傷方面起著至關重要的作用。發絲對高溫敏感,長時間暴露在高溫下會導致發絲斷裂、干燥,甚至不可逆轉的損傷。通過準確測量和控制溫度,風筒可以確保吹向頭發的空氣在安全范圍內,最大程度地減少由高溫引起的發絲損傷的風險。
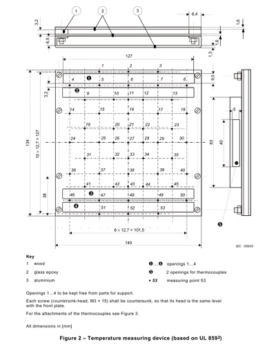
6.3.2帶熱風的毛發成型器具的出風溫度的測量,將器具水平放置在熱電偶格柵的上方,如圖1和圖2所示。將器具對中,使其軸線平行于測量點2將器具水平放置在熱電偶格柵的上方,如圖1和圖2所示。將器具對中,使其軸線平行于測量點2和52的連線,格柵和卷筒表面之間的距離為15mm。將器具繞其水平軸旋轉,找出能產生最高溫度的位置。
風筒溫度測量裝置依據QB/T1876-2010圖1、圖2、UL859標準中相關要求制造。風筒溫度測量裝置包含53路溫度測試靶和立體樣品支架兩部分。
技術參數:
1、溫度測試靶共有53個測溫點,每路測溫點采用T型歐米茄熱電偶,每路長約1.8米。
2、樣品支架部分可大小、上下可調節。
3、溫度記錄儀(選配)
- 上一個:
- 電線電線為什么要進行高溫壓力試驗





QQ咨詢
0755-23702756
微信公眾號