技術文章
B 型探棒的應用與實物照片
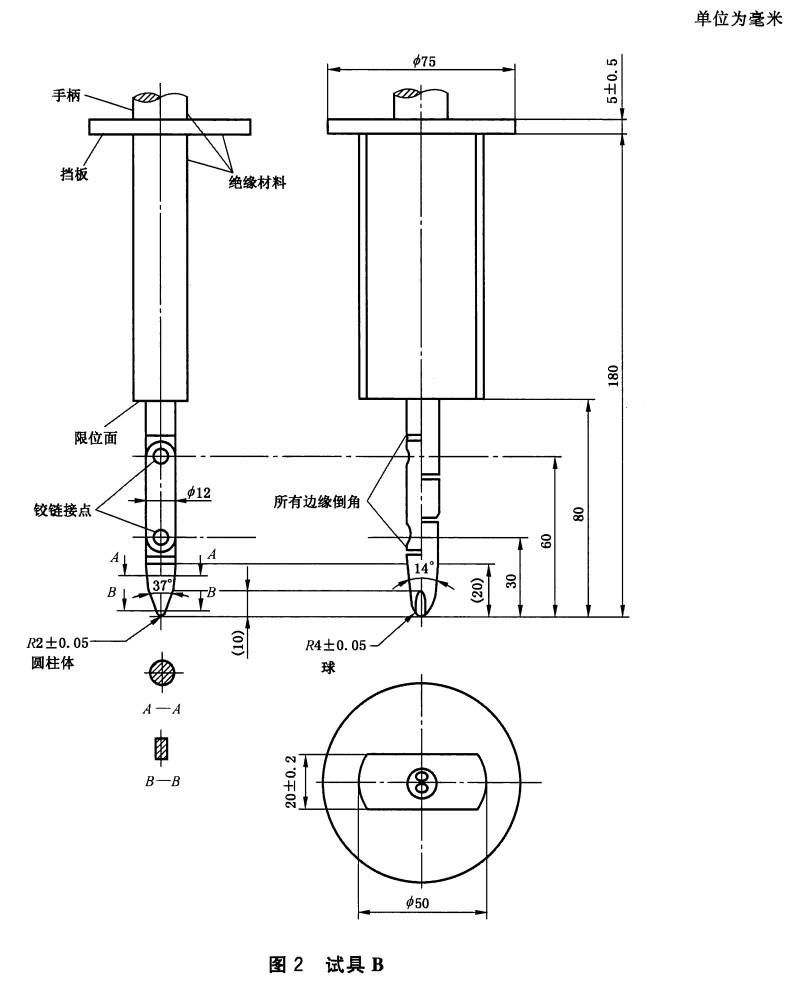
B 型探棒又稱標準B型試驗指,測試手指。符合IEC61032:1997圖2試具B、GB4208-2008等標準要求。采用304不銹鋼和尼龍材質制作,牢固耐用、做工精密、方便攜帶、外形美觀,手柄后端自帶防觸電用電線、彎指直徑12mm等結構特點。適用于IP防護等級測試的特征數字2、及附加字母B項目測試。
1.需符合 GB/T 16842- 2016 標準圖 2 要求;2.鉸鏈接點 1 尺寸: (30±0.2)mm;
3.鉸鏈接點 1 尺寸: (60±0.2)mm;
4.指長: (80±0.2)mm;
5.指尖到擋板尺寸: (180±0.2)mm;
6.指尖切割倒圓角: R2+0.005mm;
7.指尖錐度圓角: 37°;
8.指尖錐度: 14°;
9.試驗指直徑: φ 12mm;
10.A-A 截面直徑: φ50mm;
11.A-A 截面寬度: (20±0.2)mm;
12.擋板直徑: φ75mm±0.2mm;
13.擋板厚度: (5±0.5)mm;
14.材料:尼龍手柄、前端為不銹鋼材質。
.





QQ咨詢
0755-23702756
微信公眾號