技術文章
GB4706.1 標準 Φ50mm圓形擋板試驗彎指的應用
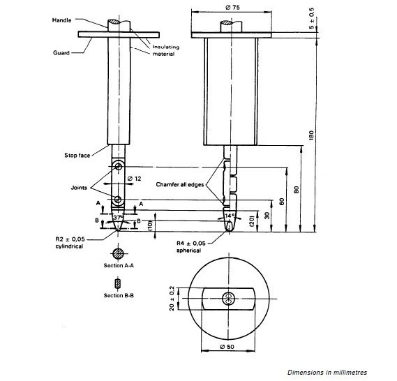
GB4706.1 標準 Φ50mm圓形擋板試驗彎指
概述:
技術參數:
該探棒是在IEC61032中B型試驗探棒的基礎上,將原來的非圓形檔板改為直徑為50mm的圓形限位擋板,其它參數與B型試驗探棒一致。
用于檢驗家用和類似用途電器廚房機械產品的機械安全防護功能,本試驗指是根據IEC61032, GB/T16842標準的試具B改進而成。
彎指直徑:12 mm
彎指長度:80 mm(三節總長度)
擋板直徑:50 mm
擋板長度:100 mm

使用方法:
a. 50mm 圓形擋板試驗彎指的關節部分不能觸及帶電部件或不能接近危險部件,且50mm的擋板不能進入;
b. 在試驗要求中,50mm圓形試驗探棒需施加一個不超過5N的力, 一般配合推拉力計使用。

- 上一個:
- 125mm大檔板試驗指有哪些規格





QQ咨詢
0755-23702756
微信公眾號