技術文章
防止直徑大于12mm的固體外物侵入IP2X防護觸及試具
IP(INGRESS PROTECTION)防護等級系統是由IEC(INTERNATIONAL ELECTROTECHNICAL COMMISSION)所起草的,將電器依其防塵、防止外物(含工具、人的手指等均不可接觸到電器內之帶電部分,以免觸電。)侵入和防濕氣、防水侵入之特性加以分級的。IP防護等級是由兩個數字所組成,第1個數字表示電器防塵、防止外物侵入的等級,第2個數字表示電器防濕氣、防水侵入的密閉程度等級,數字越大表示其防護等級越高。
IP后面第1個數字表示防塵等級,第2個數字表示防水等級。
防止直徑大于12.5mm的固體外物侵入
防止人的手指接觸到電器內部的零件,防止中等尺寸(直徑大于12.5mm)的外物侵入
防止直徑大于12mm的固體外物侵入觸及試具
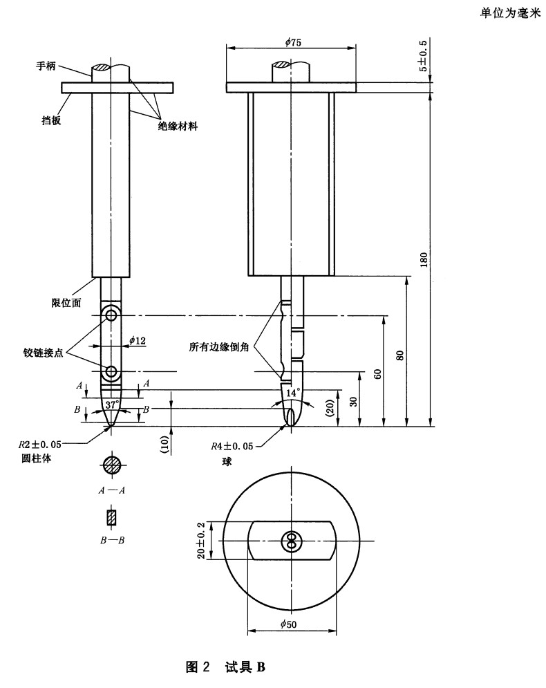
產品概述:
符合GB4706、GB2099、GB4943、GB4208IPX2、GB3883圖1、IEC61032圖2試具B、IEC950圖2A、IEC60884、IEC60335、GB/T16842試具B、UL507、EN60529圖1、UL1278圖8.4等標準要求。用于防止手指觸及或防觸電檢驗的防護檢驗。

技術參數:
1、彎指直徑:12 mm
2、彎指長度:80mm(三節總長度)
3、擋板直徑:50mm
4、擋板長度:100mm
●制帶10±1N推力。






QQ咨詢
0755-23702756
微信公眾號