技術文章
安規標準試驗指有哪些種類
安規標準試驗指有哪些種類
標準試驗指概述:
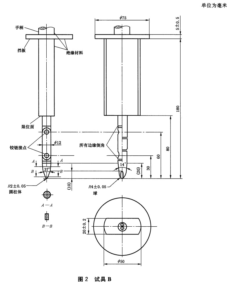
符合GB4706、GB2099、GB4943、GB4208IPX2、GB3883圖1、IEC61032圖2試具B、IEC950圖2A、IEC60884、IEC60335、GB/T16842試具B、UL507、EN60529圖1、UL1278圖8.4等標準要求。用于防止手指觸及或防觸電檢驗的防護檢驗。
技術參數:
1、彎指直徑:12 mm
2、彎指長度:80mm(三節總長度)
3、擋板直徑:50mm
4、擋板長度:100mm

在實際應用中標準試驗指有以下7種:
第1種:IEC61032標準試驗指

第2種:GB4208標準試驗指(帶10N推力)

第3種:GB4706.1標準試驗指(帶50N推力)
第4種:無關節標準試驗指
第5種:直徑50mm圓檔板試驗指
第6種:直徑125mm大檔板試驗指:
第7種:直徑125mm 厚度80mm標準試驗指
無論哪一種試驗指,使用方法都是一樣的





QQ咨詢
0755-23702756
微信公眾號